• PROJECTS
  • About
  • CONTACT
NIELSEN JENKINS.
  • PROJECTS
  • About
  • CONTACT

EAST BRISBANE

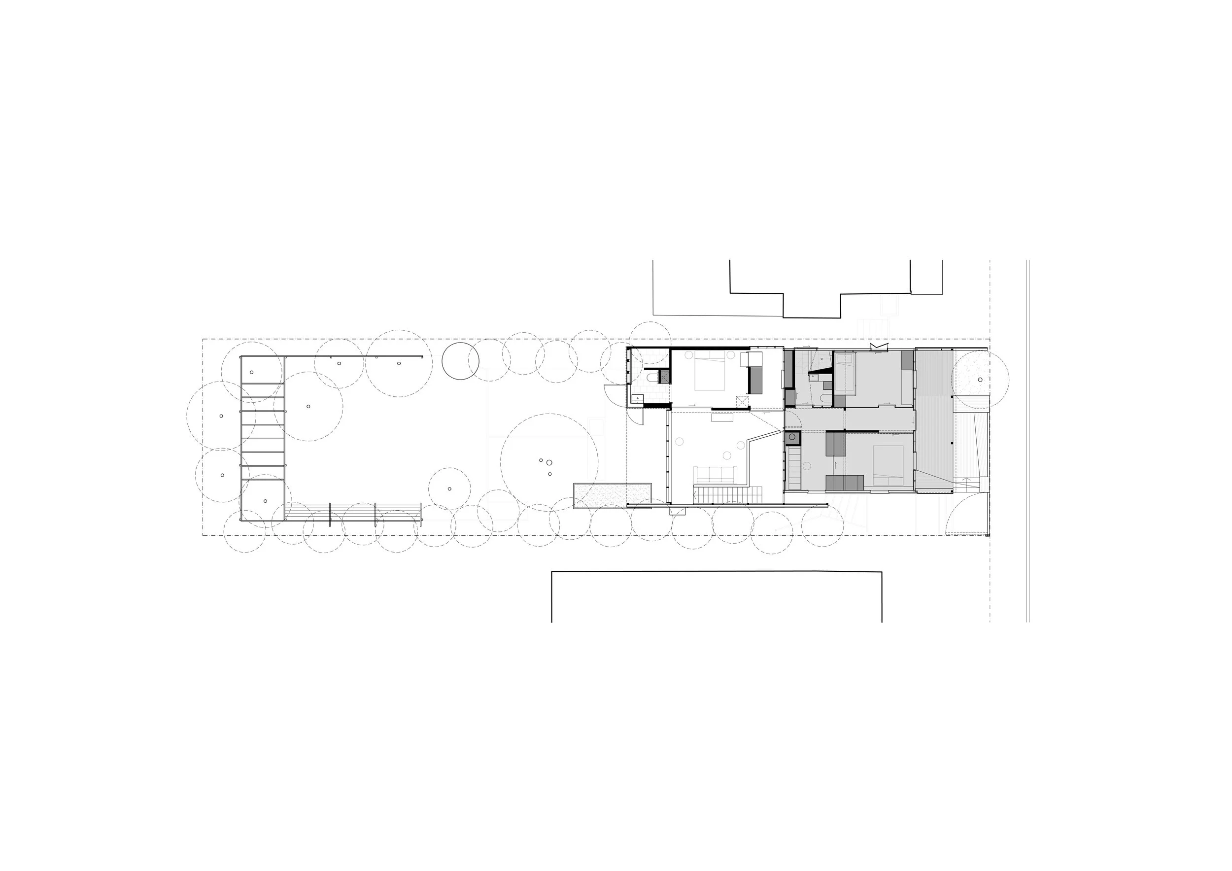
East Brisbane House is the renovation and slight addition to one of the original workers cottages in East Brisbane. This original plan is still entirely intact above the line of the picture rail, but new work uses intricately detailed cabinetry and sliding openings to push and pull their scale to suit more flexible functions. This layering and operability gives occupants control of a gradient of light quality and ventilation even deep within the plan.

There was a conscious decision to leave the house in its original position just above street level to maintain the character of the street edge. This enables a clear difference in the experience of being upstairs within the old house and being within the new grounded space downstairs. The nostalgic qualities of being under a Queenslander are present here and there is a real sense of the landscape slipping in, under and through the new work.

Built by the architect.

Landscape: Nielsen Jenkins

Photography: Shantanu Starick

2021 AIA QLD State Architecture Awards:

Commendation: Residential: Alterations & Additions

2023 HOUSES Awards:

House Alteration & Addition under 200m2 National Shortlist

Published in Green Magazine November 2023

East Brisbane_314.jpg
East Brisbane_020.jpg
East Brisbane_015.jpg
East Brisbane_038.jpg
East Brisbane_058.jpg
East Brisbane_065.jpg
East Brisbane_094.jpg
East Brisbane_102.jpg
East Brisbane_120.jpg
East Brisbane_290.jpg
East Brisbane_130.jpg
East Brisbane_197.jpg
East Brisbane_201.jpg
East Brisbane_211.jpg
East Brisbane_254.jpg
East Brisbane_107.jpg
East Brisbane_166.jpg
01_CHORLTON Upper Floor Plan EXIST 1;150-01.jpg
02_CHORLTON Upper Floor Plan 1;150-01.jpg
04_CHORLTON Lower Floor Plan 1;150-01-01.jpg
03_CHORLTON Section 1;150-01.jpg

Powered by Squarespace.